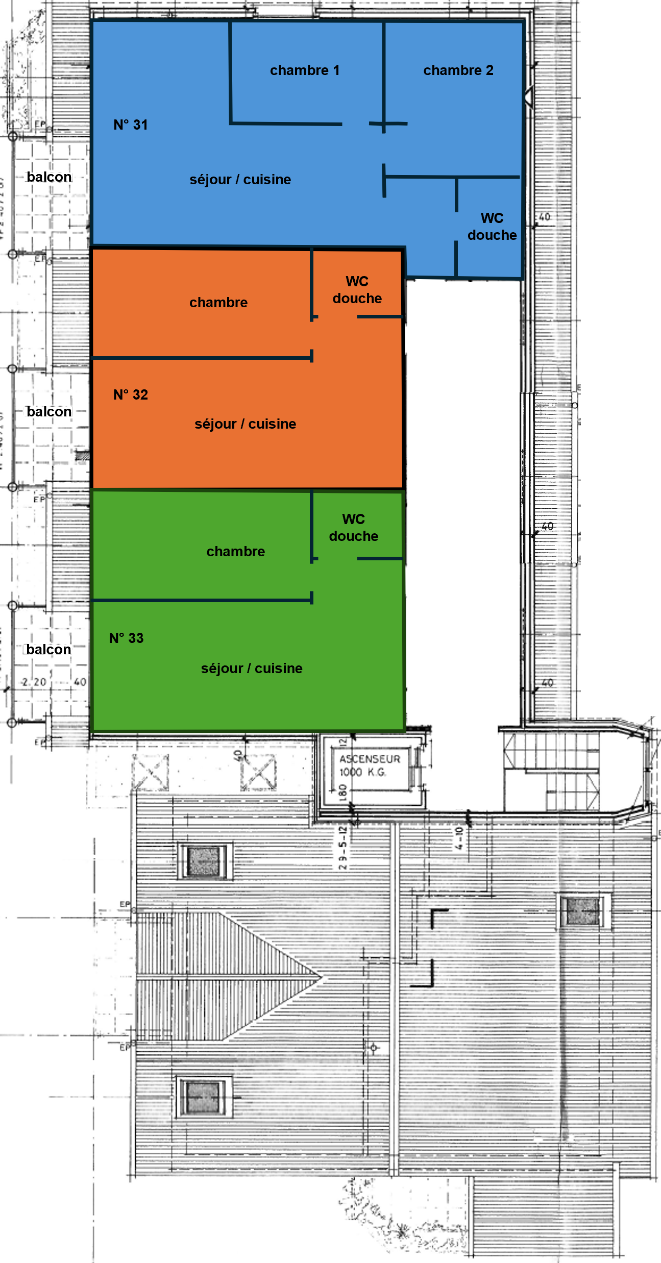
Appartement 31

3.5 pièces

3ème étage

67 m²

CHF 1320 / mois

Charges d’immeuble comprises, sans prestations d’encadrement, disponible le 1er janvier 2026 Dès le 1er avril 2026 CHF 1520 / mois, charges d’immeuble et encadrement compris.
 10 m2 & 14 m2 4m Séjour / cuisine : 32 m2

Description

Les immeubles sont équipés d’ascenseurs et disposent d’une salle communautaire. Une buanderie commune se trouve au rez-de-chaussée (lave-linge et sèche-linge avec système de paiement par carte rechargeable). Possibilité de louer des places de parc extérieures ou intérieures (dans la mesure des disponibilités).

Les appartements sont sans seuils et disposent d’un balcon. Chaque logement possède un réduit. Les salles de bains sont équipées de douches italiennes. Les cuisines sont agencées avec un four, une cuisinière 4 plaques vitrocéramique, un réfrigérateur 160 Lt avec casier de congélation.

A proximité

Transports publics

150 mètres

Commerces

200 mètres

Pharmacie

200 mètres

Renseignements

Appartements

Ils peuvent aussi vous intéresser ...

Aller au contenu principal